Normen und Richtlinien entlocken Entwicklern, Planern und Fertigern angesichts der schier unüberschaubaren Parameter, die es laufend im Workflow zu beachten gilt, selten einen Freudenschrei. Sind jedoch alle Reglements bereits in Regelwerken von Softwarelösungen fix eingebunden und überdies in einer dazu verfügbaren Artikel-Datenbank standardisiert auf Knopfdruck abrufbereit, begeistert dies alle am Prozess Beteiligten. Warum die Standardisierung somit ein unbedingtes Must-have für Automatisierung und Digitalisierung ist, beleuchtet Eplan Consultant Christoph Hausmann im Lifecycle der Eplan Elektrokonstruktion bis hin zur Fertigung und resümiert die daraus resultierenden immensen Vorteile.

Christoph Hausmann
© EPLAN GmbH
Eplan Consultant
Herr Hausmann, spätestens seit Einzug der Digitalisierung wurde der Ruf von Maschinen- und Anlagenbauern sowie -betreibern nach Standardisierung drängend, um die Konnektivität unterschiedlichster Herstellergeräte nahtlos ermöglichen zu können. Was war der Auslöser bzw. Hintergrund für Eplan, sich mit Standardisierungsfragen zu beschäftigen?
Christoph Hausmann: Im Grunde genommen beschäftigt sich Eplan seit Gründung seiner Elektro-Engineering- Softwareschmiede mit dem Thema der Standardisierung. Das Erfordernis hierzu ergab sich spätestens mit der Initiierung des Eplan Data Portals, das heute einen hochwertigen Produktkatalog zahlreicher Komponentenhersteller listet und stetig erweitert wird, um das Projektieren von Schaltplänen zu erleichtern bzw. zu beschleunigen. Das setzt voraus, dass alle diese Artikeldaten einem gewissen Standard entsprechen: Sie sind kompatibel in ihren Anbindungsmöglichkeiten zu Komponenten anderer Hersteller und entsprechen den geltenden länderspezifischen Normen. Nur so lassen sich in Folge durchgängige Automatisierung und unternehmensübergreifende Digitalisierungsmaßnahmen umsetzen.
Somit waren mit dem Einzug der Digitalisierung standardisierte Artikeldaten der Impact für das Eplan Data Portal. Damit wird unterstrichen, dass Eplan bereits von Beginn an Standardisierungsbestrebungen verfolgt und lebt.
Inwiefern drückt sich dies im Standardisierungsangebot des Eplan Softwareportfolios aus?
Christoph Hausmann: Grundsätzlich sind im Eplan Data Portal ausnahmslos alle Artikeldaten sämtlicher Hersteller genormt bzw. standardisiert gelistet – damit sind sie durchgängig in allen Prozessen verwendbar. Das heißt, man startet das Engineering eines Projekts nicht nur mit einer standardisierten Grafik, z. B. im Eplan Preplanning, sondern es geht mit den logischen Informationen weiter, sodass der gesamte Prozess bis hinein in die Fertigung durchgängig betrieben werden kann. Derart kann ein Schaltschrank – samt allen nötigen Ausschnitten – per NC-Maschine produziert werden.

Die im Eplan Data Portal gelisteten hochwertigen Artikeldaten zahlreicher Komponentenhersteller entsprechen einem gewissen Standard: Sie sind kompatibel in ihren Anbindungsmöglichkeiten zu Komponenten anderer Hersteller und entsprechen den geltenden länderspezifischen Normen.
Finden sich aktuell in allen Eplan Softwarelösungen standardisierte Funktionen, normengerechte Vorlagen etc.?
Christoph Hausmann: Absolut. Nutzt man Eplan, bewegt man sich grundsätzlich in jeder Eplan Softwarelösung in standardisierter Umgebung. Sei es nun beispielsweise im Umfeld von Eplan Electric P8 – dem ECAD-Standard der Elektrotechnik, in der Fluidtechnik für das Engineering von pneumatischen und hydraulischen Planungen oder in der von Eplan Harness proD für die effiziente Konstruktion und Dokumentation von Verkabelungen am mechanischen 3D-Modell.
Auch wenn man die verschiedenen Eplan Lösungswelten vereint nutzt, um ein mechatronisches Projekt zu bewerkstelligen, ist man standardisiert unterwegs. Und wie bereits erwähnt, bezieht man dazu aus dem Eplan Data Portal ausschließlich standardisierte Artikeldaten – aktuell sind das sage und schreibe über zwei Millionen von rund 500 Herstellern!
Eplan erweitert seine standardisierten Vorlagen zur erleichterten Erstellung individueller Elektrokonstruktions-Applikationen sukzessive. Für welche Branchen bietet Eplan aktuell derartige Vorlagen?
Christoph Hausmann: Vorweg, Eplan bietet sowohl branchenspezifische als auch branchenunabhängige Vorlagen. So haben wir z. B. branchenunabhängige Basisprojekte, die für den europäischen Raum nach der IEC-Norm, für Amerika gemäß der NFPA-Norm und z. B. für China entsprechend der GB-Norm gestaltet sind.
Bezüglich branchenspezifischer Vorlagen bietet Eplan schon seit vielen Jahren für den Anlagen- und Maschinenbau sämtlicher Industriezweige entsprechende Makros bzw. Vorlagen und Praxisbeispiele. Diese erleichtern wesentlich einen Projekteinstieg und lassen dessen Ablauf rascher bewältigen – und das stets unter Beachtung aller aktuell gängigen Vorschriften und Normen. Soeben wurden diese Vorlagen und Applikationsbeispiele entsprechend auf den neuesten Stand gebracht.
Ebenfalls branchenbezogen legt Eplan derzeit seinen Fokus in Sachen standardisierter Vorlagen auf die Gebäudetechnik und die Energietechnik. So gibt es auch zu diesen bereits Basisvorlagen sowie Praxisbeispiele, die im Eplan Engineering Standard (EES) zu finden sind.
Woher stammen eigentlich die Daten der Eplan Vorlagen?
Christoph Hausmann: Die Daten dazu werden vom Eplan Consulting direkt aus der Praxis generiert und nach Prüfung in entsprechenden Vorlagen zur Verfügung gestellt.
Der größte Datenpool für Vorlagen den wir haben, kommt demnach aus dem Eplan Data Portal und damit über die dort gelisteten Produktkataloge verschiedenster Komponentenhersteller. Das sind Artikelmakros oder Daten, die über grafische 2D- oder 3D-Ausprägung verfügen. Damit diese durchgängig über einen gesamten Prozess verwendbar sind, müssen die Daten – wie gesagt – logisch sein und entsprechend eingepflegt werden. Dazu war es wichtig, dass Eplan einen „Style Guide“ herausgibt, da ja die Daten nicht hauptsächlich von Eplan, sondern überwiegend von den Komponentenherstellern kommen. Dieser Style Guide kennzeichnet nunmehr mittels einem roten „e“ den Standardisierungsstatus der Daten, die aktuell im Eplan Data Portal zur Verfügung stehen. Die Daten, die für Makros bzw. Vorlagen und Praxisbeispiele von Eplan verwendet werden, sind somit ausnahmslos standardisierte Daten.
Inwieweit werden diese Vorlagen vor ihrer Marktfreigabe auf ihre Usability getestet?
Christoph Hausmann: Hierzu setzt Eplan auf den stärksten Hebel: Auf den der Rückmeldungen des Marktes. Hier reden wir zum einen vom Feedback der Eplan User und gleichermaßen von den Anregungen, Empfehlungen und Nachweisen der Komponentenhersteller sämtlicher Branchen, die für Eplan zuträglich sind. Schlussendlich ist von uns auch strikt festgelegt, wie Makros aussehen müssen und wer sie erzeugen darf. Das bleibt definierten Mitarbeitern vorbehalten, die dies nach einem bestimmten festgelegten Schema leisten.
Das heißt in der Praxis, dass wir ständig im Austausch sind mit unseren Kunden und deren Lieferanten sowie mit den Herstellern der Komponenten. Und darauf basiert zunehmend die Befüllung des Eplan Data Portals mit entsprechend auf Standards und Usability geprüfte Daten und in Folge mit Vorlagen sowie Praxisbeispielen.
In dieser Hinsicht kann man nicht einmal mehr von den aktuell genannten zwei Millionen gelisteten Artikeldaten im Eplan Data Portal sprechen, denn diese sind „lediglich“ Artikelstammdaten. Tatsächlich stehen wesentlich mehr Artikel aktuell zur Verfügung und mehren sich täglich, da es im Eplan Data Portal Unmengen von Artikeln gibt, die aufgrund ihrer Konfigurierbarkeit zusätzlich weitere spezifische Artikel mit eigenen Artikelnummern hervorbringen. Diese Art der Datengenerierung und -anreicherung im Eplan Data Portal wird seitens der Komponentenhersteller bewerkstelligt, die permanent im Hintergrund läuft. Und auch diese spezifischen Konfigurationsdaten sind selbstverständlich standardisiert, entsprechen dem Eplan Style Guide und die Komponenten sind auf jegliche Anwendungsszenarien getestet, geprüft und abgenommen. Auch diese spezifisch konfigurierten Daten können von jedem Eplan User heruntergeladen und für Projekte sowie für die Skalierung von Vorlagen bzw. Makros und Praxisbeispielen verwendet werden.
Eplan ist international tätig. Kann man davon ausgehen, dass sämtliche weltweit geltenden länderspezifischen Normen auch in den Artikeln des Eplan Data Portals berücksichtigt sind?
Christoph Hausmann: Aktuell haben wir sämtliche weltweit spezifische Normen berücksichtigt, aber nicht alle Normen sind auch mit den dazu entsprechenden Artikeln im Eplan Data Portal gelistet. Das liegt daran, dass nicht alle unsere gelisteten Komponentenhersteller für jede länderspezifische Norm adäquate Produkte anbieten.
Vor ca. drei Jahren hat Eplan mit dem Relaunch der komplett erneuerten Eplan Plattform auch verstärkt den amerikanischen Markt fokussiert und damit auf deren Normen und Maßeinheiten, die sich nicht wie in Europa betreffend metrische Längeneinheiten auf Millimeter, sondern auf Inch beziehen.
Eplan hat zwar schon immer seine Basisprojekte mit den Einstellungen dazu für den amerikanischen wie auch für den asiatischen Raum mitgeliefert. Doch die gelisteten Artikel im Eplan Data Portal waren damals nicht auf die Maßdifferenzen zwischen Millimeter und Inch abgestimmt. Zusätzlich ist auch die Zeichenrichtung in der Norm eine andere in Amerika und Asien als die in Europa. Somit hat sich Eplan mit diesen Unterschiedlichkeiten intensiv beschäftigt und hat kürzlich ein Basisprojekt für Makro-Erstellungen für die Artikelerstellung mit Inch herausgegeben. Darüber hinaus gibt es mittlerweile auch amerikanische Komponentenhersteller, die im Eplan Data Portal mit ihren Artikeln gelistet sind.
Damit bietet das Eplan Data Portal nun für die Makros bzw. Vorlagen der Eplan Plattform eine jeweils länderspezifisch gekennzeichnete Artikelauswahl, die nach Bedarf über das Eplan Data Portal gefiltert werden kann.


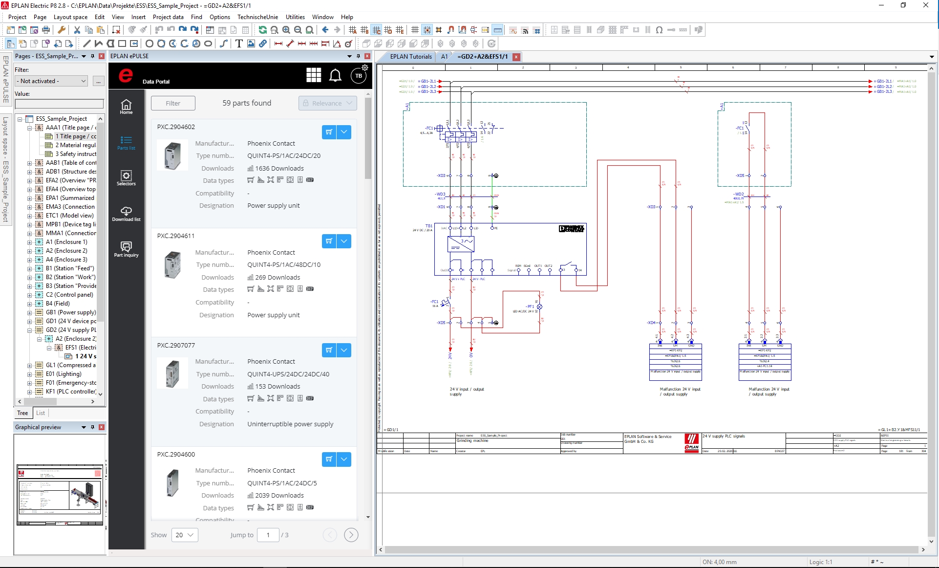
Unabhängig mit welcher Eplan Softwarelösung man arbeitet (hier mit Eplan Electric P8), die dazu aus dem Eplan Data Portal bezogenen Artikeldaten sind alle ausschließlich standardisiert. Aktuell sind das über zwei Millionen von rund 500 Herstellern!
Bei dem stetig steigenden Software-Funktionsumfang stellt sich die Frage, wie deren Anwender damit klarkommen. Gibt es eine zentrale Stelle, an der sie zu Updates auf aktualisierte Informationen zugreifen können?
Christoph Hausmann: Zum einen gibt es stets direkt bei Eplan die persönliche Consulting-Anlaufstelle, an die sich jeder Konstrukteur mit allen anstehenden Fragen wenden kann.
Begleitend dazu ermöglicht Eplan auch die digitale Hilfestellung über die Eplan Cloud, in der alle Informationen – alte wie aktuelle – zur Eplan Plattform zentral und leicht verständlich zur Verfügung stehen. Ob man nun als Neukunde von Eplan bei der Installation beginnt oder zu Software-Updates gezielte Infos benötigt, über die Eplan Cloud werden zu allen Aufgabenstellungen anschauliche, praxisgerechte Auskünfte erteilt – zum Nachlesen und in Form kostenloser Eplan eLearnings.
Gibt es auch für Eplan Lizenzbezieher eine individuelle, auf sie speziell zugeschnittene Online-Hilfe?
Christoph Hausmann: Selbstverständlich! Meldet sich ein Eplan User über das Informationsportal www.eplan.com an, findet er sich automatisch in seinem persönlichen Bereich, der sämtliche seiner Eplan Lizenzen und dahinterliegenden Projekte fokussiert. Von hier aus können über die „Plattformhilfen“ zu sämtlichen Themen vertiefende Infos gezielt eingeholt werden. Dazu gibt es Spezialbereiche wie „Installation“ oder den „Eplan Blog“. Letzterer informiert zu einem breiten Themenspektrum – angefangen von allgemeinen Branchenentwicklungen über Best Practice bis hin zu Anwendungstipps rund um die Softwarelösungen von Eplan.
Darüber hinaus werden dem Eplan Konstrukteur oft weitere hilfreiche Themen, Beispiele und Anleitungen angeboten, die für seine weitere Arbeit nützlich sein können. Das ist ein Angebot, das äußerst schnell, intuitiv und ohne langwierige Eingabe von Suchbegriffen Lösungen zu Anliegen aufzeigt.
Von welchen Vorteilen profitieren summa summarum Eplan Konstrukteure von der Standardisierung?
Christoph Hausmann: Vorweg ist die Zeitersparnis der größte Nutzen. Eplan Konstrukteure müssen Artikeldaten nicht selbst erstellen und können sich darauf verlassen, dass alle gelisteten Herstellerdaten sich für den weiteren Prozess perfekt eignen. Das heißt, der Eplan Anwender hat in dieser Hinsicht nichts zu überprüfen, was wiederum die Qualität der Pläne enorm steigert. Auch das Aussehen der Pläne wird einheitlicher – das spart allen Projektbeteiligten Zeit im Workflow der Zusammenarbeit, in der Planausführung und -skalierung selbst sowie bei der Umsetzung der Pläne in der nachgelagerten Fertigung. Ganz zu schweigen von der beachtlichen Qualitätssteigerung der Produkte.
Und selbst in der Instandhaltung sind sowohl alte als auch aktuelle Schaltplandaten ruckzuck abrufbar, was wiederum die Fehlerquote im Workflow senkt, folglich die Qualität erhöht sowie den Zeitaufwand massiv senkt.
Zur Zeitersparnis und Qualitätserhöhung gesellt sich noch der stetig fließende aktualisierte Informationswert zwischen allen an einem Eplan Projekt Beteiligten, da die Pläne für alle mit Zugangsberechtigung in der Eplan Cloud aufliegen, einsehbar und bearbeitbar sind. Wissen geht somit nicht verloren – selbst, wenn ein Projektbeteiligter den Job oder in den Ruhestand wechselt.
Fazit ist, dass die Standardisierung der Wegbereiter zur Automatisierung und in Folge zur Digitalisierung ist. Dies ist der Flow, den Eplan in der Elektrokonstruktion über den gesamten Produktlebenszyklus konstant verfolgt, lebt und an seine Kunden weitergibt.